RESIDENTIAL

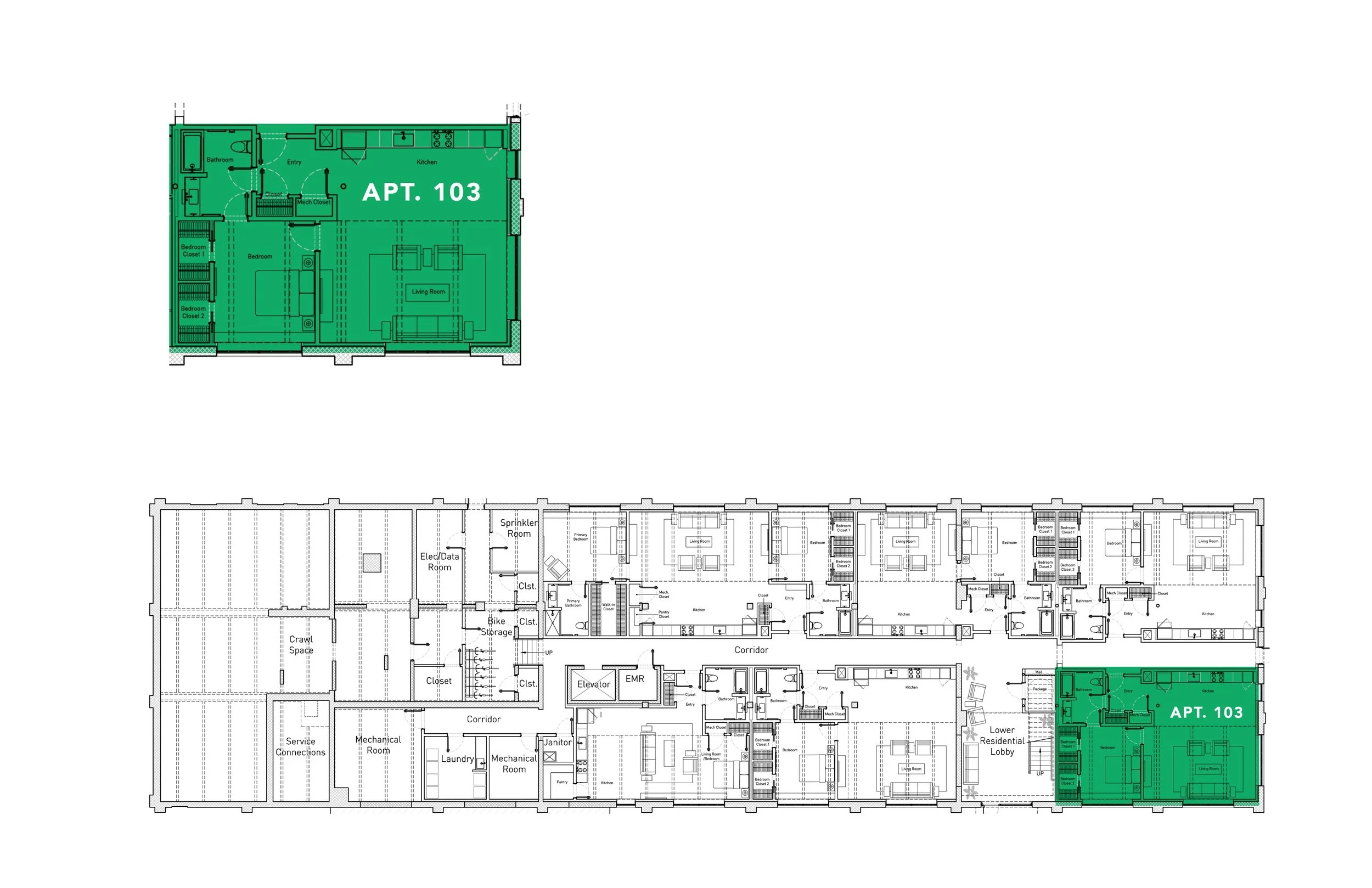
One-of-a-kind residences with open floor plans, high ceilings, expansive windows and large rooms. At the heart of every residence is a well-appointed kitchen. Custom finishes and textures abound: finely milled cabinetry, high end kitchen appliances, keyless electronic entry, designer light fixtures, Energy Star Rated. The apartments also share a lobby and out-door garden space.

AMENITIES


High End Appliances


Central Air

Storage


Pets Allowed


Fiber Optic Internet


Laundry


Downtown


FLOOR PLANS

Residences are located on 2 levels. Each floor shares a residential lobby and outdoor garden space.

UPPER LEVEL

LOWER LEVEL